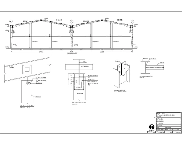
دانلود نقشه سوله با دهانه 20 متر دوقلو

نمونه نقشه سوله 2000 متری در اصفهان دهانه ۲۰ متر دوقلو.

امروز 1404/10/18

مشخصات کلی این نقشه عبارت است از:

  • دهانه 20 متر دوقلو (دو دهانه 20 متری)
  • طول 52 متر
  • ارتفاع 8 متر
  • جرثقیل 5 تن

1.500.000 ریال

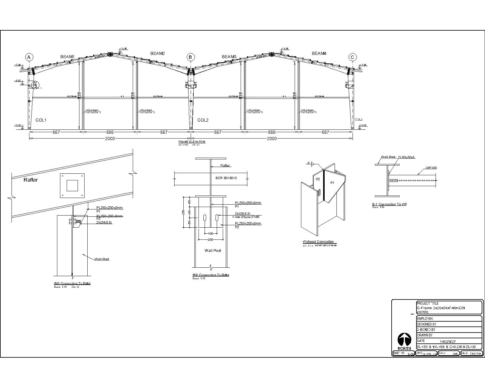
دانلود نقشه سوله 2160 متری با دهانه 20 متر دوقلو.

این سوله در استان خوزستان، شهرستان امیدیه ساخته شده است.

با توجه به روند رو به رشد قوانین ساختمانی کشور و هم چنین تغییر آئین نامه های طراحی سازه ای، هر ساله نقشه های سازه ای دارای جزئیات بیشتری هستند.

بنابراین به این نکته نیز دقت کنید که با توجه به بار باد، زلزله، برف و مقاومت خاک هر منطقه، طراحی های سازه ای متفاوت هستند.

بنابراین قبل از تهیه این محصول به مشخصات ذیل دقت فرمایید:

  • این سوله دارای دهانه آکس تا آکس 20 متری است.
  • طول سوله 52 متر است.
  • ارتفاع ستون های این سوله 8 متر می باشد.
  • جرثقیل این سوله توانایی حمل بار 5 تن را دارد.

بنابراین توجه فرمایید که هنگام دانلود نقشه سوله با دهانه 20 متر دوقلو این ابعاد، یکی از رند ترین ابعاد سوله است و به نحوی می توان گفت نیاز اکثر کارفرمایان سوله سازی در اصفهان و دیگر شهرهای کشور است.

به این نکته توجه فرمایید که شما درصورت نیاز میتوانید از همین نقشه برای ساخت سوله تک دهانه نیز استفاده کنید.

دوست عزیز همواره توجه فرمایید ملاک ساخت یک سوله تایید شدن نقشه ها از سوی سازمان نظام مهندسی شهرستان می باشد. چون هر شهر از لحاظ بار باد، زلزله و برف متفاوت عمل میکند.

بنابراین بهترین گزینه برای ساخت یک سوله طراحی مناسب سازه ای قبل از هر کاری است. شما عزیزان می توانید جهت ساخت سوله اینجا کلیک کنید یا با شماره ی 09132860726 تماس بگیرید.

توجه:

**** این محصول شامل دفترچه محاسبات نمی باشد و

دارای فایل کَد با پسوند dwg و فایل pdf می باشد. ****

سوله ها سازه هایی هستند که اغلب کاربرد صنعتی، انبار  ورزشی دارند.

جهت هرگونه مشاوره خرید، ساخت و نصب سوله در اصفهان و دیگر شهر های کشور با ما تماس بگیرید.

 

لطفا دقت داشته باشید این محصول فقط جنبه آموزشی دارد و فولاد سازه هیچ مسئولیتی در قبال استفاده از این محصول برای ساخت سوله ندارد.

نقد و بررسی‌ها

هنوز بررسی‌ای ثبت نشده است.

اولین کسی باشید که دیدگاهی می نویسد “دانلود نقشه سوله با دهانه 20 متر دوقلو”

نشانی ایمیل شما منتشر نخواهد شد. بخش‌های موردنیاز علامت‌گذاری شده‌اند *