دانلود نقشه سوله با دهانه 20 متر

نمونه نقشه سوله 1000 متری در اصفهان دهانه ۲۰ متر.

امروز 1404/10/18

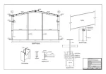
مشخصات کلی این نقشه عبارت است از:

  • دهانه 19.5 متر
  • طول 42 متر
  • ارتفاع 8 متر
  • جرثقیل 5 تن

1.500.000 ریال

دانلود نقشه سوله 1000 متری با دهانه 20 متر

این سوله در استان اصفهان، شهرستان شهرضا ساخته شده است.

این به این معناست که شما یک نقشه کاملا کاربردی را در اختیار دارید و با خیال راحت میتوانید شروع به ساخت کنید.

با توجه به روند رو به رشد قوانین ساختمانی کشور و هم چنین تغییر آئین نامه های طراحی سازه ای، هر ساله نقشه های سازه ای دارای جزئیات بیشتری هستند.

بنابراین به این نکته نیز دقت کنید که با توجه به بار باد، زلزله، برف و مقاومت خاک هر منطقه، طراحی های سازه ای متفاوت هستند.

بنابراین قبل از تهیه این محصول به مشخصات ذیل دقت فرمایید:

  • این سوله دارای دهانه حدوداً 19.50 متری است.
  • طول سوله 42 متر است.
  • ارتفاع ستون های این سوله 8 متر می باشد.
  • جرثقیل این سوله توانایی حمل بار 5 تن را دارد.

بنابراین توجه فرمایید که هنگام دانلود نقشه سوله با دهانه 20 متر این ابعاد، یکی از رند ترین ابعاد سوله است و به نحوی می توان گفت نیاز اکثر کارفرمایان سوله سازی در اصفهان است.

دوست عزیز همواره توجه فرمایید ملاک ساخت یک سوله تایید شدن نقشه ها از سوی سازمان نظام مهندسی شهرستان می باشد. چون هر شهر از لحاظ بار باد، زلزله و برف متفاوت عمل میکند.

بنابراین بهترین گزینه برای ساخت یک سوله طراحی مناسب سازه ای قبل از هر کاری است. شما عزیزان می توانید جهت ساخت سوله اینجا کلیک کنید یا با شماره ی 09132860726 تماس بگیرید.

توجه:

**** این محصول شامل دفترچه محاسبات نمی باشد و

فقط به صورت فایل pdf است. ****

سوله ها سازه هایی هستند که اغلب کاربرد صنعتی، انبار  ورزشی دارند.  جهت هرگونه مشاوره خرید، ساخت و نصب سوله در اصفهان و دیگر شهر های کشور با ما تماس بگیرید.

 

لطفا دقت داشته باشید این محصول فقط جنبه آموزشی دارد و فولاد سازه هیچ مسئولیتی در قبال استفاده از این محصول برای ساخت سوله ندارد.

نقد و بررسی‌ها

هنوز بررسی‌ای ثبت نشده است.

اولین کسی باشید که دیدگاهی می نویسد “دانلود نقشه سوله با دهانه 20 متر”

نشانی ایمیل شما منتشر نخواهد شد. بخش‌های موردنیاز علامت‌گذاری شده‌اند *